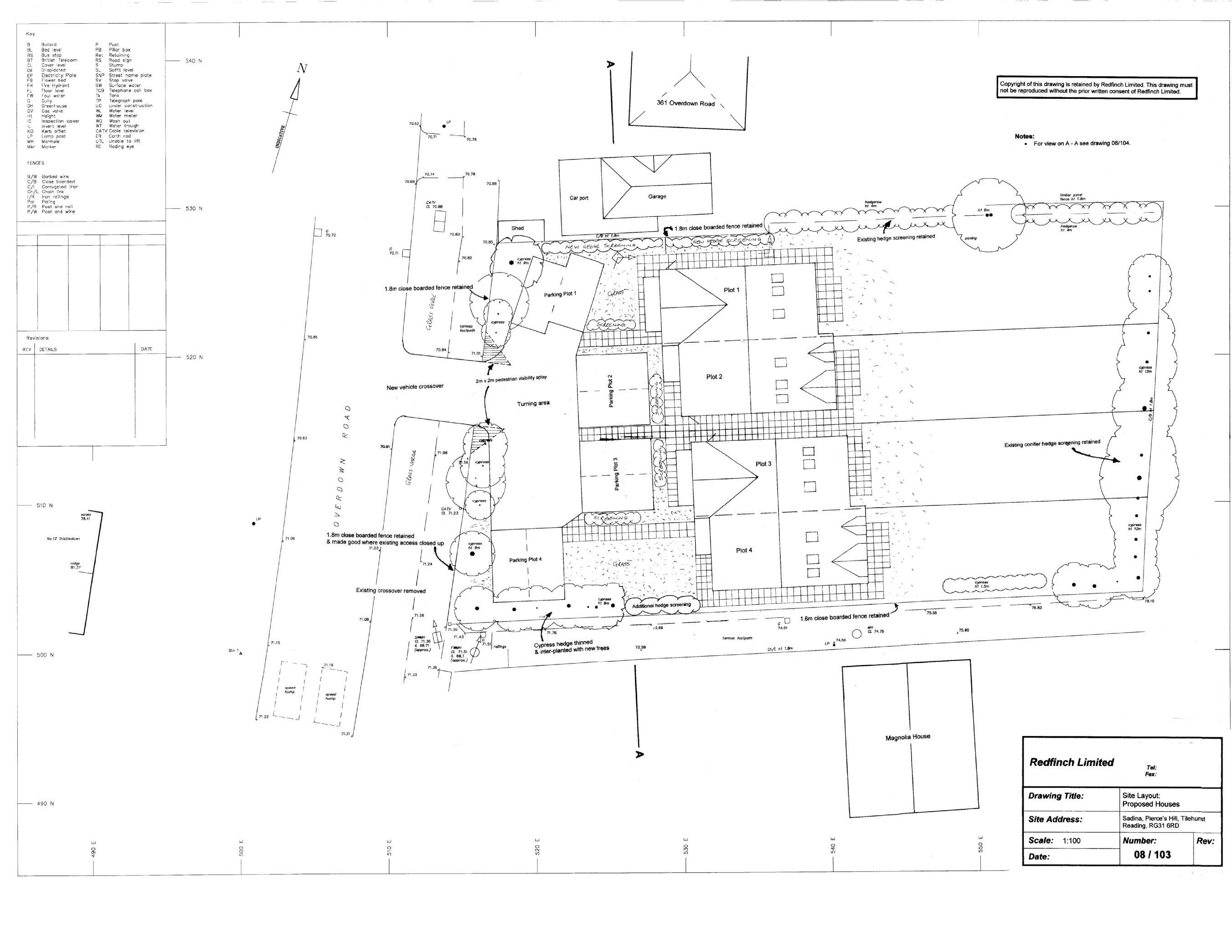
Tilehurst, Berkshire
Redfinch acquired a site in Tilehurst that comprised a large chalet bungalow on a steeply sloping plot. We prepared a detailed scheme and full planning application for the replacement of the existing dwelling with two pairs of three bedroom semi- detached homes.
Once full planning permission was granted by the local authority, the site was successfully sold to a local builder who completed the development.

